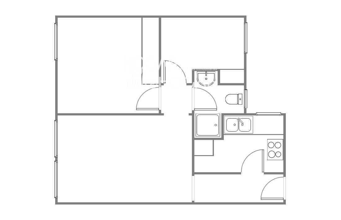
PISO DOS HABITACIONES EN SEGUR DE CALAFELL (Estacion)
Segur De Calafell - REF. 2115

46 m2

4 m2

2

1

3
venta: 132.500 €
Descripción
🌊 Tu rinconcito junto al mar en Segur Platja ☀️.A solo 260 metros de la playa, este piso es perfecto para quienes buscan comodidad, buen ambiente y una vida cerca del Mediterráneo...🏡 46 m² construidos (40 m² útiles) llenos de luz y buen rollo..🛋️ Salón-comedor de 20 m², súper acogedor, ideal para tus tardes chill o recibir a tus amigos..🛏️ 1 habitación doble + 1 sencilla, perfecta como despacho, vestidor o zona de hobbies..🛁 Baño completo y un trastero que siempre viene genial..☀️ Orientación sur, luz natural todo el día..📍 Zona tranquila pero con todo a mano: servicios, escuelas, ocio… y la playa a un paseo...Ideal para parejas jóvenes, primeras viviendas o segunda residencia cerca del mar. Un piso práctico, cómodo y con ese toque que engancha desde el primer minuto 💙✨..🔥 ¿Te lo enseño cuando te vaya bien?.CALL ME 📲 y lo vemos sin compromiso...#SegurDeCalafell #SegurPlatja #CostaDaurada #PisoEnVenta #ParejasJóvenes #FirstHome #VivirCercaDelMar
Características
Precio Venta 132.500 €
Precio/m² 2.880
Gastos de comunidad 25 €
I.B.I. 188 €
Año de construcción 1979
Construidos 46 m2
Útiles 40 m2
Dormitorios 2
Baños 1
Amueblado
Trastero
Altura/Planta 3
Estado Buen estado
Tipo de suelo Gres
Aire acondicionado
Calificación Energética (G) VER
Luz
Vídeos
Escalas de eficiencia


Eficiencia Emisiones: 40,00
Eficiencia Consumo: 215,00
215
40

Contáctanos

Si deseas más información sobre esta propiedad, por favor, rellena el formulario.

 Sí, he leído y/o acepto las Condiciones de uso y la Política de privacidad
Inmuebles similares:
 
119.900 €
Ref. 1743  42 m2  1  1
Piso en venta en Torredembarra, con 42 m2, 1 habitaciones y 1 baños, Garaje y Amueblado.
 
136.500 €
Ref. 1962  51 m2  2  1
Piso en venta en Segur De Calafell, con 51 m2, 2 habitaciones y 1 baños y parking.